5.4 细部构造
5.4.1 楼、地面的防水层在门口处应水平延展,且向外延展的长度不应小于500mm,向两侧延展的宽度不应小于200mm(图5.4.1)。
图5.4.1 楼、地面门口处防水层延展示意
1—穿越楼板的管道及其防水套管;2—门口处防水层延展范围
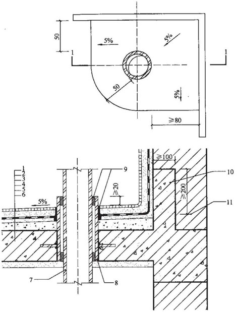
5.4.2 穿越楼板的管道应设置防水套管,高度应高出装饰层完成面20mm以上;套管与管道间应采用防水密封材料嵌填压实(图5.4.2)。
图5.4.2 管道穿越楼板的防水构造
1—楼、地面面层;2—粘结层;3—防水层;4—找平层;5—垫层或找坡层;6—钢筋混凝土楼板;
7—排水立管;8—防水套管;9—密封膏;10—C20细石混凝土翻边;11—装饰层完成面高度
5.4.3 地漏、大便器、排水立管等穿越楼板的管道根部应用密封材料嵌填压实(图5.4.3)。
图5.4.3 地漏防水构造
1—楼、地面面层;2—粘结层;3—防水层;4—找平层;5—垫层或找坡层;6—钢筋混凝土楼板;
7—防水层的附加层;8—密封膏;9—C20细石混凝土掺聚合物填实
5.4.4 水平管道在下降楼板上采用同层排水措施时,楼板、楼面应做双层防水设防。对降板后可能出现的管道渗水,应有密闭措施(图5.4.4),且宜在贴临下降楼板上表面处设泄水管,并宜采取增设独立的泄水立管的措施。
图5.4.4 同层排水时管道穿越楼板的防水构造
1—排水立管;2—密封膏;3—设防房间装修面层下设防的防水层;4—钢筋混凝土楼板基层上设防的防水层;
5—防水套管;6—管壁间用填充材料塞实;7—附加层
5.4.5 对于同层排水的地漏,其旁通水平支管宜与下降楼板上表面处的泄水管联通,并接至增设的独立泄水立管上(图5.4.5)。
图5.4.5 同层排水时的地漏防水构造
1—产品多通道地漏;2—下降的钢筋混凝土楼板基层上设防的防水层;3—设防房间装修面层下设防的防水层;
4—密封膏;5—排水支管接至排水立管;6—旁通水平支管接至增设的独立泄水立管
5.4.6 当墙面设置防潮层时,楼、地面防水层应沿墙面上翻,且至少应高出饰面层200mm。当卫生间、厨房采用轻质隔墙时,应做全防水墙面,其四周根部除门洞外,应做C20细石混凝土坎台,并应至少高出相连房间的楼、地面饰面层200mm(图5.4.6)。
图5.4.6 防潮墙面的底部构造
1—楼、地面面层;2—粘结层;3—防水层;4—找平层;5—垫层或找坡层;
6—钢筋混凝土楼板;7—防水层翻起高度;8—C20细石混凝土翻边
![]() |
